一、餐飲/飯店污水處理設備功能介紹:
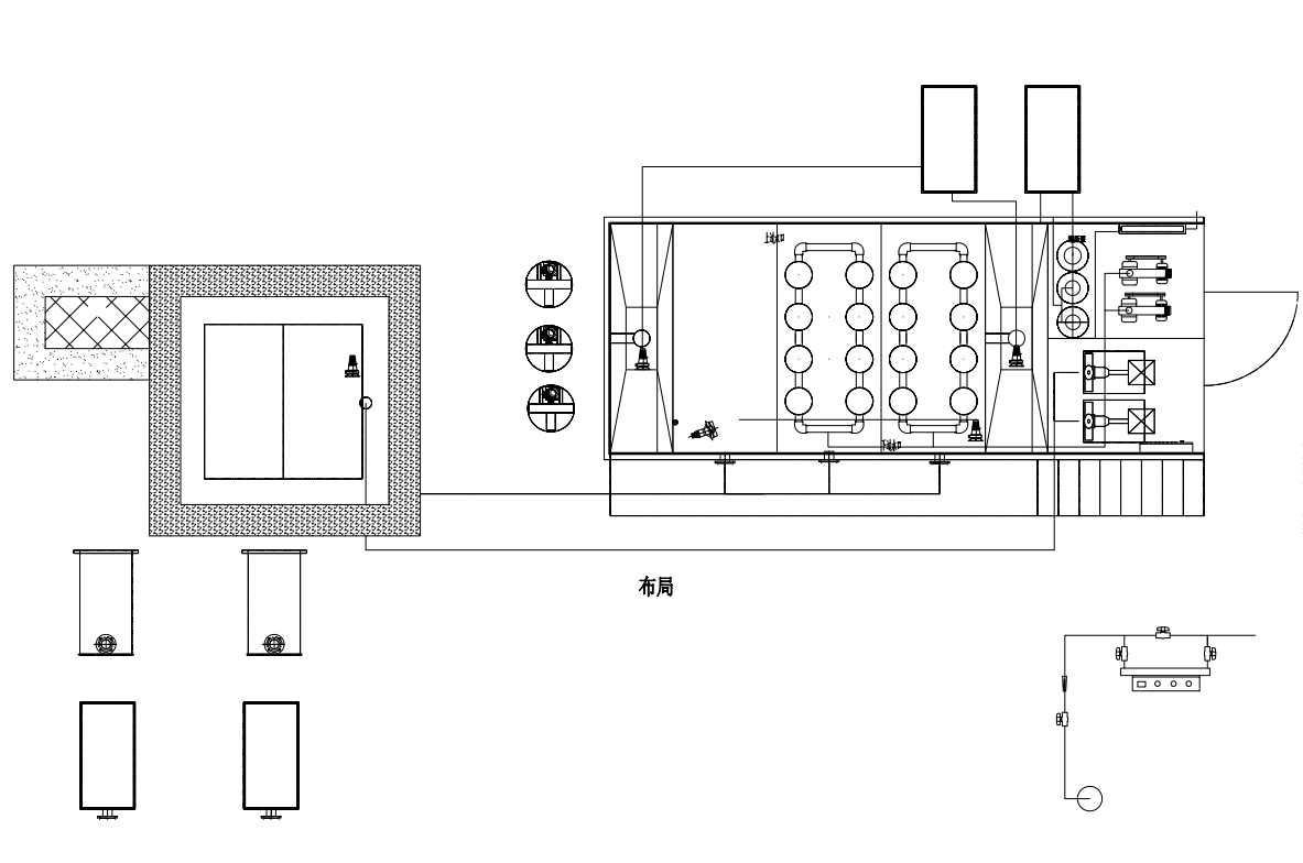
1.絮凝管道與絮凝器
樂中環保Leptech?飯店污水處理設備以其精心設計的絮凝管道和絮凝器為開端,為污水處理過程注入了高效的凝聚力。通過這一巧妙的構造,污水中的微小懸浮物能夠在此聚合并逐步沉淀,為后續處理步驟打下堅實的基礎。
2.管道支座與設備外殼
設備的穩定運行離不開堅固的支撐,而我們在管道支座和設備外殼的設計上下足了功夫。支座穩固可靠,外殼堅韌耐用,為設備長期運行提供了可靠保障。
3.絮凝系統與外置加強結構
樂中環保Leptech?飯店污水處理設備的絮凝系統細致入微,為污水中的雜質提供了精準有效的捕捉和聚集,確保達到更好的處理效果。外置加強結構不僅加強了整體穩定性,還優化了處理過程,讓污水凈化更加高效。
4.工藝接口與功能隔板
設備的工藝接口精心設計,使得不同處理單元之間的協作更加緊密順暢。功能隔板則在優化處理流程的同時,最大限度地提高了污水凈化效率,確保水質達標。
5.潛水推進器與微孔曝氣器
樂中環保Leptech?飯店污水處理設備中的潛水推進器和微孔曝氣器如同設備的“心臟”和“肺部”,為生物處理提供強有力的動力和充足的氧氣。這一組合使得污水中的有機物得以迅速降解,達到了非常好的凈化效果。
6.集泥裝置與設備間
設備的集泥裝置和設備間布局合理,使得污泥的回流和收集更加便捷高效。循環利用污泥進一步提高了處理效率,減少了資源浪費。
7.溢流系統與掛膜載體支撐系統
溢流系統的巧妙設計保障了設備的安全運行,防止過載和泄漏。
8.掛膜載體
樂中環保Leptech?飯店污水處理設備引入掛膜載體技術,進一步擴大了處理面積,使得微生物得以更大范圍地附著生長,為污水凈化帶來了新的可能性。

